4-Zimmer-Wohnung im Herzen von Graz
Glacisstraße 11, 8010 Graz | Objektnummer: 400072
| Wohnen | |
| Objekt-ID | 400072 |
| Adresse | Glacisstraße 11, 8010 Graz |
| Wohnfläche | 137 m² |
| Miete | 1.491,71 €/Monat |
| Art | Wohnen, Miete/pacht |
Objektbeschreibung
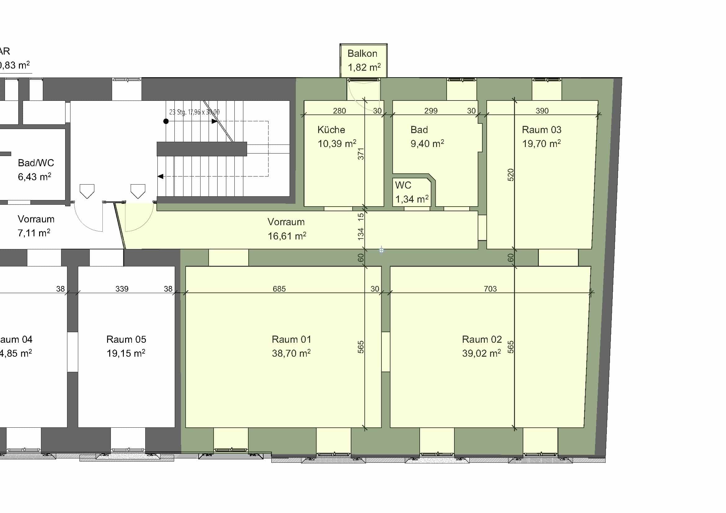
Stilvoller Altbautraum beim Stadtpark – 4-Zimmer-Wohnung mit Charme in zentraler Lage
Diese großzügige 4-Zimmer-Wohnung mit ca. 150 m² Wohnfläche vereint stilvolles Wohnen mit urbaner Lebensqualität – ideal für Familien oder anspruchsvolle Stadtliebhaber.
In einem prachtvollen Altbau gelegen, überzeugt die Wohnung durch ihre beeindruckenden 3,60 Meter hohen Räume, herrliche Flügeltüren, klassische Holzböden und eine Raumaufteilung, die sowohl Eleganz als auch Funktionalität bietet. Die großen Fenster sorgen für viel Tageslicht und ein angenehmes Wohnklima.
Die Highlights im Überblick:
-
ca. 150 m² Wohnfläche
-
4 großzügige Zimmer mit Altbauflair
-
hohe Decken (3,60 m) & klassische Flügeltüren
-
separate Küche mit allen Anschlüssen
-
Badezimmer mit Wanne und Fenster
-
praktischer Abstellraum
-
Balkon zum Entspannen
-
gepflegter Innenhof zur Mitbenutzung
-
zentrale Lage: nur 5 Minuten ins Stadtzentrum
-
direkte Nähe zum Stadtpark – ideal für Spaziergänge, Freizeit und Erholung
Die zentrale Lage bietet beste Infrastruktur: Einkaufsmöglichkeiten, Schulen, Kindergärten, öffentliche Verkehrsmittel und Freizeitangebote befinden sich in unmittelbarer Umgebung. Trotz der Urbanität genießen Sie dank des Innenhofs auch Ruhe und Entspannung mitten in der Stadt.
Einziehen & Wohlfühlen – diese Wohnung bietet alles, was das Herz begehrt.
Vereinbaren Sie noch heute einen Besichtigungstermin – wir freuen uns auf Ihre Anfrage!
Eckdaten
| Immobilienart | Wohnen |
| Zimmer | 4 |
| Wohnfläche | 137 m² |
| Nettomiete | 1027.35 €/m² |
| Gesamtmiete | 1491.71 €/Monat |
| Adresse | Glacisstraße 11, 8010 Graz |
Direktanfrage

